Appartamento in vendita a Scandicci zona Centro (FI)
- Civile abitazione
- 62 mq
- 2
- 1


























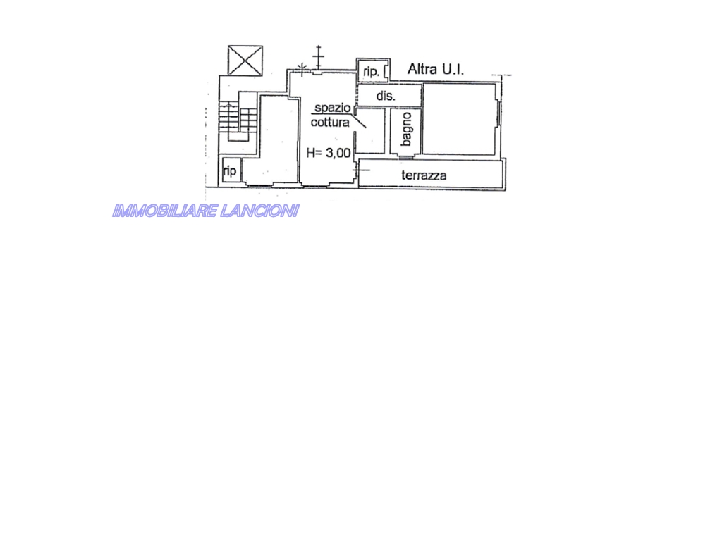
SCANDICCI SPAZIOSO TRILOCALE FERMATA TRAMVIA RESISTENZA. IN ZONA STRATEGICA, A DUE PASSI DALLA FERMATA DELLA TRAMVIA PROPONIAMO UN AMPIO APPARTAMENTO DI TRE VANI IN BUONE CONDIZIONI GENERALI. L'INGRESSO SI APRE SU UN DISIMPEGNO ACCOGLIENTE CHE CONDUCE AD UNA ZONA GIORNO LUMINOSA COMPOSTA DA SOGGIORNO/PRANZO CON ANGOLO COTTURA, CI SONO DUE CAMERE DA LETTO, IDEALI SIA PER UNA FAMIGLIA CHE PER CHI CERCA UNO SPAZIO EXTRA PER STUDIO O OSPITI. L'IMMOBILE DISPONE INOLTRE DI DUE RIPOSTIGLI, UTILI PER ORGANIZZARE AL MEGLIO GLI SPAZI ED UN BAGNO DOTATO DI DOCCIA E FINESTRA GARANTENDO COMFORT E FUNZIONALITA'. UNO DEI PUNTI DI FORZA E' LA TARRAZZA DI CIRCA 12 MQ LATO CUCINA. IL RISCALDAMENTO E' CENTRALIZZATO E SERVITO DA ASCENSORE. L'APPARTAMENTO E' DISPONIBILE IMMEDIATANMENTE; UNA SOLUZIONE PRATICA E BEN DISTRIBUITA. ZONA OTTIMAMENTE SERVITA.
Caratteristiche principali
- Immobile in vendita: € 278.000
- Posti auto: no
- Classe Energ.: F - IPE: 78,8
- Giardino: no
- 62 mq - Vani: 3
- Spese condominiali: 1400,00 euro annue
- Ingresso: 1
- Soggiorno: 1
- Cucina: 1 angolo cottura
- Camere: 2 matrimoniale e doppia
- Servizi: 1 con box doccia finestrato
- Studio: no
- Ripostiglio: 2
- Cantina: no
- Balconi: no
- Terrazzi: no
- Piano: 1
- Piani stabile: 5
- Ascensore: si
- Sottotetto: no
- Posto auto: no
- Giardino /resede: no
- Riscaldamento: centralizzato
- Imp. elettrico: certificato
- Spese condominiali: 1400,00 euro annue
- Anno costruzione: nd
- Stato proprietà: libero
- Classe Energetica: F
- IPE: 78,8
Zona ubicazione immobile
Richiesta informazioni
Studio Immobiliare Lancioni Scandicci
- info@immobiliarelancioni.it
- Via Ponchielli 56 - Scandicci (FI)
- 055.751213
